Home / Residential Projects/ Emaar Palm Premier at Palm Hills Sector 77 Gurgaon

Emaar Palm Premier Sector 77 Gurgaon- Project Overview

Welcome to Emaar Palm Premier. New towers nestled in Palm Hills, a lively, bustling neighbourhood surrounded by refreshing green spaces and offering a panoramic view. A large master planned secured gated community with multiple parks and landscaped greens. It promises an active and healthy lifestyle with modern Clubhouse equipped with multipurpose hall, restaurant, business centre, kids room, gymnasium, wellness zone with steam-sauna-treatment room, party and yoga terrace, terrace garden swimming pool, kids pool and pool deck. Abode in the world of eco, active and affluent living that will inspire you to get moving. It is strategically located on the artery of National Highway, and a bustling neighbourhood with lively ecosystem.
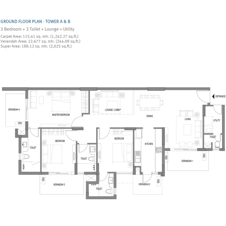
Emaar India launched Emaar Palm Premier in their successfully running habitat project called Emaar Palm Hills at Sector 77 Gurgaon. All 3BHK with 3 Toilet and Lounge plus Utility over-looking NH8 Expressway Gurgaon. Mid-Height Twin-Towers are part of their prestigious project Emaar Palm Hills and loaded with 39000 Sq.Ft. of sports and club facility. 3BHK with 3Toilet, Lounge and Utility which has two unit layouts 185.80 SqMtr (Super Area 2000 SqFt.) and 188.12 Sq.Mtr.(Super Area 2025 SqFt). These units are air-conditioned, loaded modular kitchen with Hob and Chimney and Geyser and Microwave, Wooden flooring in bedrooms and marble tiles in drawing and dining.
Key points for Emaar Palm Premier are as this, Split AC in living Dining and All Bedrooms || Laminated Wooden Flooring All Bedrooms || Integrated Modular Kitchen, Hob Chimney, Geyser || Premium Bathroom CP Fittings and Chinaware || Marble Tile Flooring in Living and Dining || Shower Cubicle Master Bathroom

Emaar Palm Premier Sector 77 Gurgaon- Key Features:

Located in Sector 77 on main NH8 Expressway Gurgaon
Twin towers with spacious 3 BHK A/c. Apartments overlooking NH8 Expressway
Located on India’s most strategic corridor Delhi- Mumbai Expressway
Flanked by multi-lane sector roads and national highway
Minutes away from the major Business districts of Gurugram
Designed to get maximum ventilation and natural light, expansive living areas well ventilated rooms.
Sports, Activity and Social Zone operational now
Laminated Wooden Flooring in all Bedrooms, High Quality Flooring in Living and Dining area
Within the close vicinity of Well-known Hotels, hospitals and schools
Modern-day amenities & services such as billiards, amphi-theatre, snooker room, squash, badminton & tennis court, swimming pool, jogging track, skating rink, gymnasium, meditation with yoga center, party arena, kids play area, senior citizen area

Emaar Palm Premier at Palm Hills Sector 77 Gurgaon

Emaar Palm Premier Sector 77 Gurgaon- Floor Plans

Uniquely-Designed 4-to-a-core (Only 4 units per floor) Ready-to-Move-Homes. Limited period Exclusive Pricing & Payment Plan for select units in select towers. All 3 BHK Premium Homes now ready to move homes.

Emaar Palm Premier Sector 77 Gurgaon - Location Map & Site Plan

Location Map

Emaar Palm Premier at Palm Hills Sector 77 Gurgaon- Location Map

Site Plan

Emaar Palm Premier at Palm Hills Sector 77 Gurgaon- Site Plan

Emaar Palm Premier Sector 77 Gurgaon- Project Enquiry

Fill and Submit this Enquiry Form to get all details for Emaar Palm Premier at Palm Hills Sector 77 Gurgaon.

Enquiry form image

Emaar Palm Premier- Project Downloads

Project downloads available here, if you are looking for somethis more, let us know

Project Brochure

Click here to Download

Project Layout Plans

Click here to Download

Project Price List

Click here to Download